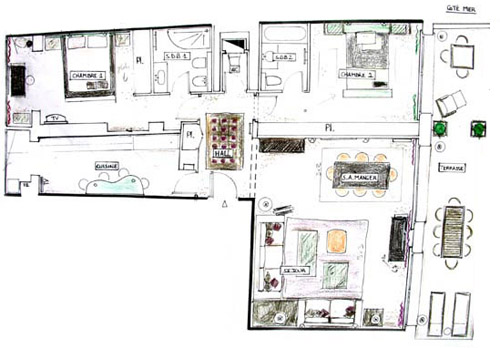
Recherche de mobilier adapté Implantation sur plans et esquisses

 
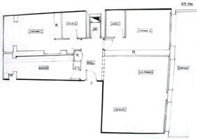
Re-édition de plan conforme à l'origine



Plan avec proposition d'implantation de mobilier.